
|
268,641 SF Area |
DD & CD Project Delivery |
| 8 weeks Duration |
2024 Year |

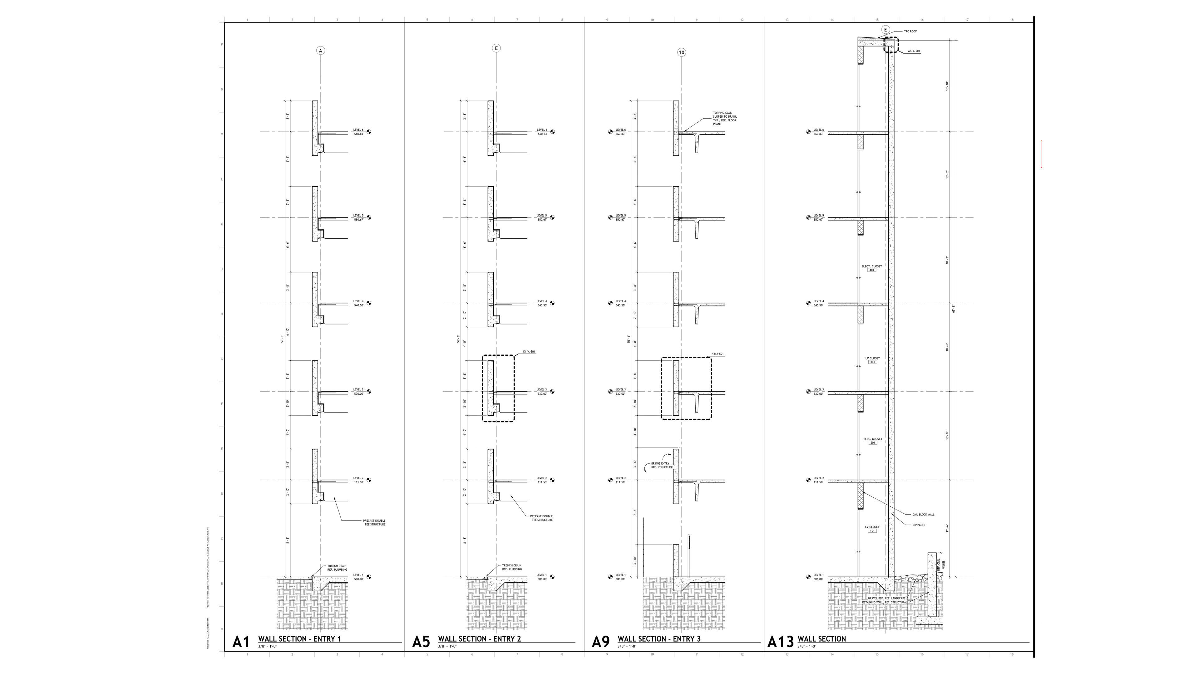
We supported the development of a new four-level parking structure with capacity for 1,000 vehicles and a total area of 268,641 SF, aligning with the project’s technical and planning requirements.
Our scope included BIM model development and the production of documentation during the Design Development (DD) and Construction Documents (CD) phases, ensuring consistency, clarity, and constructibility across all deliverables.
The building was designed using a precast concrete system and engineered to support a future vertical expansion of two additional parking levels, which required precise and continuous coordination with our client and the structural team.
The main challenge of the project was ensuring accurate modeling of the precast system and delivering clear, buildable documentation within restricted timelines, reducing design risks.
Our added value
-
We provided consistent communication, proactive coordination, and reliable technical support throughout the project.
-
By anticipating issues early and collaborating closely with our client and consultants, we helped resolve challenges efficiently and ensure a smooth, coordinated delivery process.
Our team
- Job Captain: José Ignacio Stang
- BIM Coordinator: Nicolás Yuvero
%20(1).png?width=740&height=416&name=Dise%C3%B1o%20sin%20t%C3%ADtulo%20(46)%20(1).png)
Testimonials
"The biggest challenge of the project was maintaining a fast-paced schedule while ensuring clarity and consistency across all deliverables. Through structured communication, early issue tracking, and a strong focus on quality control, we were able to keep the team aligned and meet every milestone on time. This level of organization allowed us to support our client effectively and deliver a coordinated and reliable documentation package."
José Ignacio Stang
Job Captain
“Coordinating a fully precast parking structure required precise alignment between disciplines and continuous model validation. By implementing a clear coordination workflow and rapidly addressing discrepancies as they arose, we ensured a clean, accurate, and buildable BIM model. This approach minimized design conflicts and helped the team progress efficiently toward the final submission."
Nicolás Yuvero
BIM Coordinator