
| Perry, Oklahoma Location |
17,600 SF Area |
17 weeks Duration |
Architecture + ID; SD Support |
|
|
.png?width=740&height=555&name=Dise%C3%B1o%20sin%20t%C3%ADtulo%20(96).png)
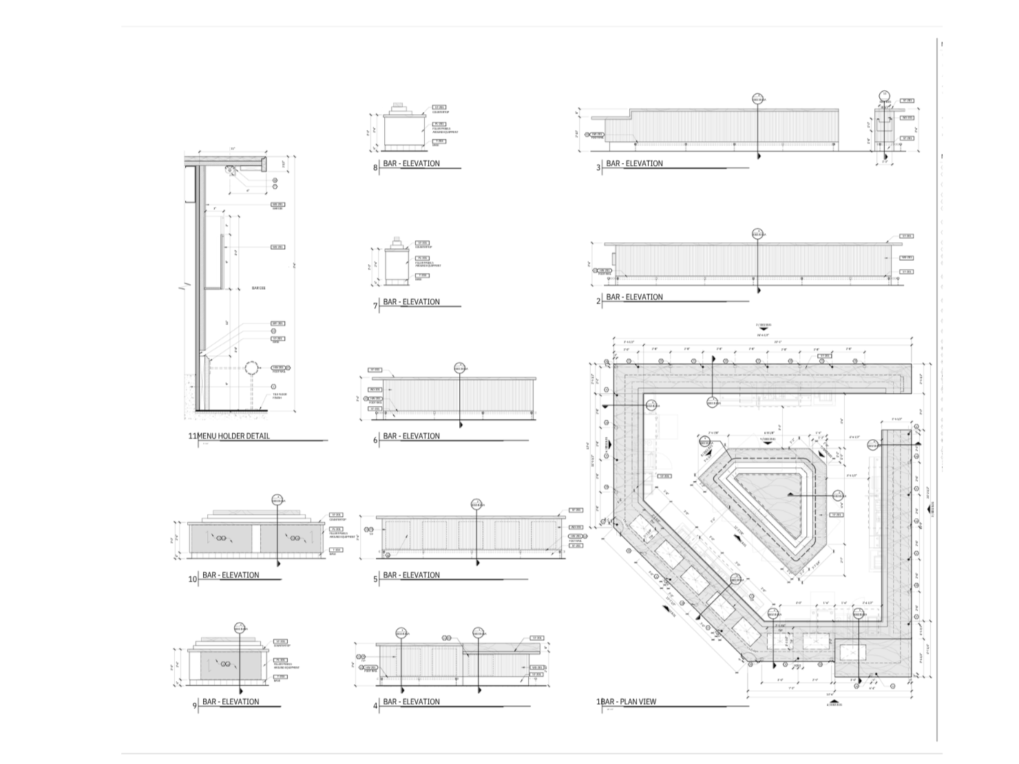
The Fancy Dance Casino expansion project represents a comprehensive upgrade to an existing entertainment facility, focused on enhancing both operational performance and the overall user experience. The intervention integrates new and renovated spaces within an active casino environment, requiring precise coordination and phased development.
The scope includes the expansion and remodeling of the gaming floor, along with upgrades to key amenities such as the bar and restaurant areas, restrooms, and supporting back-of-house spaces. In parallel, site improvements at the main entrance were developed to strengthen accessibility, circulation, and the overall arrival experience.
Our added value
- We ensured seamless integration between existing and new conditions through coordinated BIM modeling.
- We maintained consistency across all design phases, reducing rework and improving execution clarity.
- We delivered high-quality, permit-ready documentation aligned with U.S. standards, supporting a smooth approval and construction process.
Our team
- Project Leader: Esteban Rodríguez Brizuela
- BIM Manager: Rodrigo Mir
- Architectural Services Manager: Marcelo Picone
.png?width=740&height=555&name=Dise%C3%B1o%20sin%20t%C3%ADtulo%20(94).png)
Testimonials
"The key challenge in this project was balancing production speed with strict quality standards. From my side, I worked closely with the team to guide production, implement QA/QC checkpoints, and ensure alignment with client expectations at every stage. By structuring the workflow and supporting the team through continuous feedback, we were able to deliver consistent, high-quality documentation while keeping the project on track. This approach helped build trust with the client and ensured a solid execution across all phases."
Marcelo Picone
Architectural Services Manager
Valerie Andriani-Schlatter
Senior Interior Designer